产品详情KYN550-12户内铠装移开式交流金属封闭开关设备(以下简称KYN550-12开关柜)是本公司旗下尺寸最小的应用于12kV三相交流50Hz单母线及单母线分段系统的成套配电设备。KYN550-12具有防止带负荷推拉断路器手车、防止误分误合断路器、防止接地开关处在闭合位置时关合断路器、防止误入带电隔室,防止在带电时误合接地开关的“五防”联锁功能,配装户内中压固封式真空断路器手车,是一种性能优越的配电设备。
KYN550-12的尺寸设计,为客户节省了大量的配电空间,主要用于商业及工业建筑、房地产、数据中心及其他工业电网等有小型化需求的变电场所。
本开关柜满足IEC62271-200,GB3906,DL/T404等标准要求。KYN550-12开关柜外壳的防护等级为IP4X,当断路器室门打开,手车移开时,防护等级为IP2X。
正常使用条件
◇周围空气温度:上限+40℃,下限-25℃;
◇海拔高度:设备安装场所的最大海拔高度2000m;
◇环境温度:日平均相对湿度不大于95%月平均相对湿度不大于90%;
◇地震烈度不超过8度;
◇周围空气应不受腐蚀性或可燃性气体、水蒸气等明显污染;
◇无严重污秽及经常性的剧烈振动。严酷条件下的严酷度设计应满足1类要求。
特殊工作条件
◇在超过GB3906和本技术条件规定的正常环境条件下使用时,由用户和制造厂协商。
KYN550-12
户内铠装移开式交流金属封闭开关设备
|
序号 |
名称 |
单位 |
技术参数 |
|
|
1 |
额定电压 |
kV |
12 |
|
|
2 |
额定频率 |
Hz |
50 |
|
|
3 |
额定工频耐受电压(1min) |
kV |
42/48(断口) |
|
|
4 |
额定雷电冲击耐受电压(峰值) |
kV |
75/85(断口) |
|
|
5 |
额定电流 |
A |
≤1250 |
|
|
6 |
额定短时耐受电流(4s) |
kA |
1)≤31.5 |
|
|
7 |
额定峰值耐受电流(峰值) |
kA |
≤80 |
|
|
8 |
主回路电阻 |
μQ |
2)≤100+CT2 |
|
|
9 |
防护等级 |
外壳 |
kV |
IP4X |
|
|
|
断路器室门打开 |
kV |
IP2X |
注:1)电流互感器的额定短时耐受电流和额定峰值耐受电流与其变比有关,在订货时需作具体确认。
2)包含电流互感器的直流电阻。
|
序号 |
名称 |
单位 |
技术参数 |
|
|
1 |
额定电压 |
kV |
12 |
|
|
2 |
额定绝缘水平 |
额定短时工频耐受电压(1min) |
kV |
42 |
|
|
|
额定雷电冲击耐受电压(峰值) |
kV |
75 |
|
3 |
额定频率 |
Hz |
50 |
|
|
4 |
额定电流 |
A |
1250 |
|
|
5 |
额定短路开断电流 |
kA |
≤31.5 |
|
|
6 |
额定短时耐受电流 |
kA |
≤31.5 |
|
|
7 |
额定峰值耐受电流 |
kA |
≤80 |
|
|
8 |
额定短路关合电流(峰值) |
kA |
≤80 |
|
|
9 |
额定异相接地开断电流 |
kA |
27.4 |
|
|
10 |
额定短路电流持续时间 |
s |
4 |
|
|
11 |
额定短路电流开断次数 |
次 |
30 |
|
|
12 |
额定操作顺序 |
操作循环 |
自动重合闸:分-0.3s-合分-180s-合 |
|
|
|
|
|
自动重合闸:分-0.3s-合分15s-合分 |
|
|
|
|
|
非自动重合闸:分-180s-合分180s-合分 |
|
|
13 |
机械寿命 |
次 |
20000 |
|

|
序号 |
参数(单位) |
数据 |
|
1 |
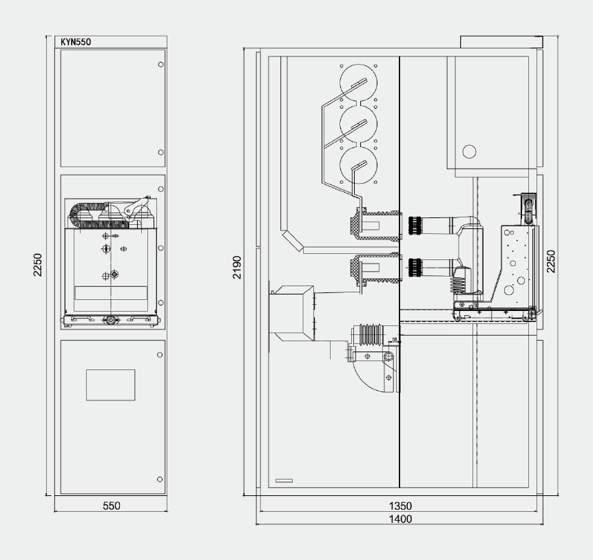
宽度A(mm) |
550 |
|
2 |
高度B(mm) |
2250 |
|
3 |
深度C(mm) |
1400(1550) 400-700 |
